Kath MacTaggart, landscape architect at BDP, discusses the benefits of designing and creating outdoor learning and social environments that spark imagination and creativity
Raised in the rural south-west of Scotland, I remember only too well wet playtimes at school, sitting bored at my desk and staring out of the window, or hanging around the corridors. Thankfully, there is a shift happening and indoor breaks are becoming a thing of the past and even if it is raining, children are being encouraged to go outside.
Educationalists are being influenced by the Scandinavian countries and their approach to making the most of outdoor spaces surrounding nurseries and schools. For them, it isn’t just about play and break times; it is about creating learning and social environments that spark imagination and creativity, encouraging them to connect with nature. The events of 2020 have surely kickstarted an even greater need for us all to get outside and appreciate the physical and mental health benefits that the natural world provides.
A ‘whole estate’ approach to design
As a landscape architect at BDP’s Glasgow studio, I am very fortunate to work as part of an expert team who take a ‘whole estate’ approach to design and where the starting point is always to consider the history and the context of the area to provide a solution that is of its place. Having worked on numerous Early Years and education projects, I have had the pleasure of working with clients who recognise the valuable asset they have in their external areas and are aspirational in their approach to teaching – taking learning beyond the school building.
They recognise how well-designed external spaces can inspire both children and teachers, offering benefits such as improved health, motor skills development, psychological wellbeing and positive behaviour. They have also embraced the need for risk in the external environment, which helps to build resilient and fearless wee folk.
My role is to educate clients on how a relatively small proportion of the budget can help to create so much more than just tar and grass areas. I encourage clients to look at completed projects to see what they could achieve by working with a landscape architect.
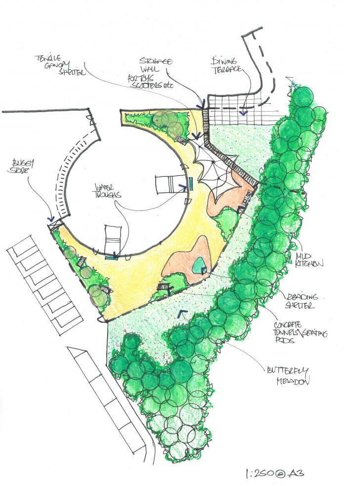
Enhancing outdoor learning
Small changes can really enhance the outdoor learning experience for children and help to provide a variety of stimulating spaces that can accommodate play and learning, for all types of young learners, and in all weathers too.
From the consultations we have carried out with children during the early stages of the design process, they tell us they want to be outside, even when it is wet. In fact, their excitement and the sense of adventure at being able to create dens and shelters during these exercises really shines through. And this is why I love my job – I get to design spaces where young people can thrive.
But the responsibility of a landscape architect extends beyond creating spaces for today’s group of young learners; it is about sustainable design that will meet the needs of future generations. Working in a time dimension, the spaces I create today will continue to evolve. Trees planted to create an attractive setting for a building will not only improve the microclimate and provide shelter but also will become a habitat for wildlife. Ongoing maintenance of school estates is a key consideration for local authorities, from both cost and environmental perspectives. If costs and budget are proving to be challenging, I can also demonstrate to them how the landscape can be added to over the years to evolve and change with their needs.
There’s nothing I love more than revisiting a project years on to see just how it has developed and matured but, most importantly, to see how it is being used and loved by the children. I have a favourite quote from Sir David Attenborough, who said: “No one will protect what they don’t care about; and no one will care about what they have never experienced”.
As a child, I was lucky to have parents whose love of the outdoors helped to shape me. It is now my turn to encourage future generations to experience this so that they too can learn to love, care for and protect their landscapes.
Kath MacTaggart 
Landscape architect
BDP












